24小时咨询热线:13366773399

4-6 元/m².天

分享到:

项目简介

Project brief

项目简介:

位置:丰台区右安门外东滨河路2号,紧邻南二环,距地铁14号线北京南站直线距离800米。

丰台园区前身为北京微电机总厂,作为新一批老旧厂房改造的一个新兴项目。北京市微电机总厂,成立于1958,作为中国微电机的佼佼者。随着城市化进程,北京更多的老旧工厂已经华丽转身。
园区总建筑面积40000平米,项目由三栋办公楼及一栋酒店建筑构成,其中1号楼地上建筑面积4607.72平米,共4层,3号楼总建筑面积7623平米,共四层。
园区共有5独栋,一期1、3号楼已改造完成对外招商,面积15001平米,1号楼共4层,1层面积2000平米用做商业配套,2-4层3801平米整体出租,3号楼共5层,每层面积1840平米,面积可分割,也可整层出租。

出租房源

Rental housing

  • 整栋地上4层7288平米空置

    面积:7620m²价格:4.5元/m²·天装修:精装现房工位:500-1000

    精装小户型248平米出租 位置超好拎包入住

    面积:248m²价格:5元/m²·天装修:精装现房工位:30

    整层2160平米高使用率,现房空置

    面积:2160m²价格:4.8元/m²·天装修:白墙喷顶地毯 空调灯盘工位:150-300

    精装半层带花园1080平米现在交付空置

    面积:1080m²价格:5元/m²·天装修:白墙喷顶地毯 空调灯盘工位:150
    提示:最终租赁面积情况以实时来电咨询为准,感谢您的支持!

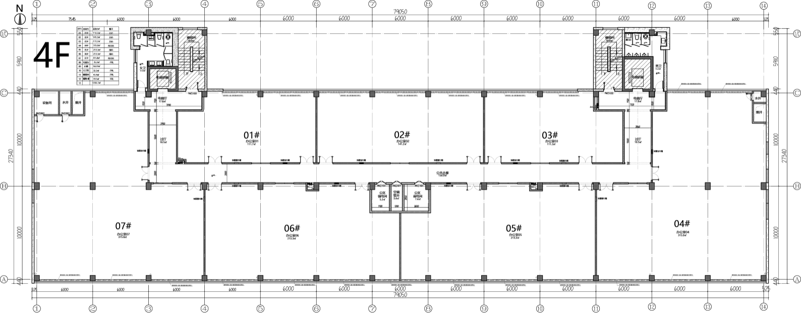
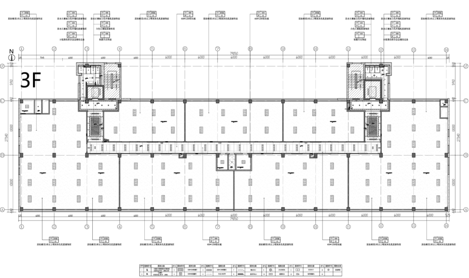
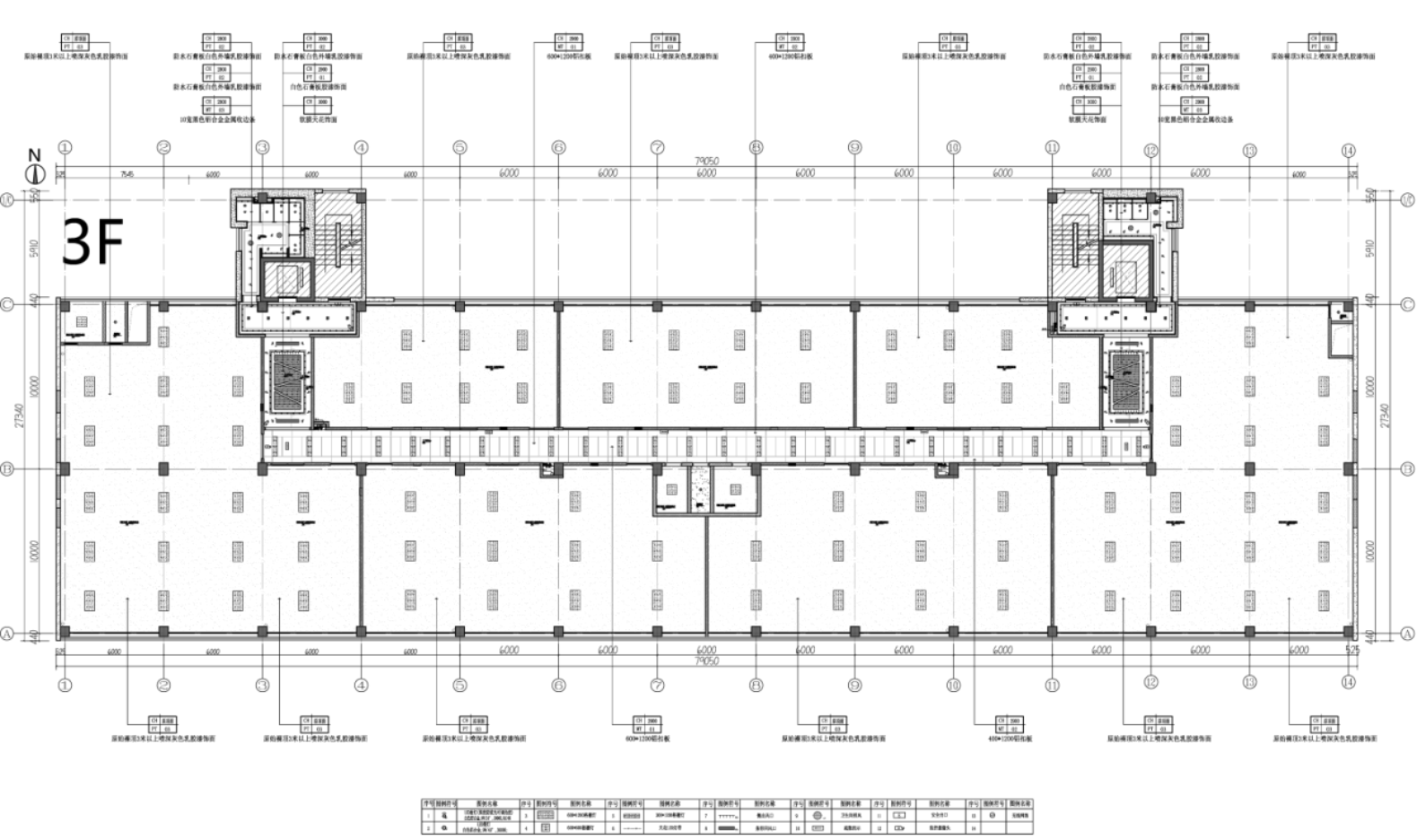
    标准层平面图

    Standard floor plan

    项目图片

    Project picture

    办公区实拍图

    Office area pictures

    地理位置

    Location

    交通状况

    【位置】:紧邻南二环,南二环右安门东滨河路甲2号,距离北京南站800m。

    【交通】:距离北京南站800米。

     [地铁站]:4号线14号线北京南站、19号线景风门站

    北京市丰台区东滨河路2号产业园招商电话13366773399