24小时咨询热线:13366773399

5-6 元/m².天

分享到:

项目简介

Project brief

            首科大厦,位于西二、三环之间,约11万平米,地处丽泽金融商务区商圈,是中关村丰台园分中心。园区区域优势明显、空间品质高端、商务配套完善,是区域的地标型建筑之一。首科大厦致力于打造国际一流创新中心,园区集聚国际领先的头部企业资源,以新一代信息技术为核心,以人工智能为代表,围绕智慧交通、数字文化创意和金融信息等战略新兴产业,打造以金融、科技和文化头部企业为引领的高精尖产业集群。近年来,首科大厦累计引进高精尖企业300余家,园区企业年营业收入超过50亿元,留丰台区税收在4000万元/年以上,位于全区前列。首科大厦已经成为500强公司研发基地、高成长企业的总部和创新创业企业的聚集地。经过多年发展,首科创融荣获了包括“国家级科技企业孵化器”、“国家备案众创空间”、“国家高新技术企业”、“北京市级文化产业园区”、“中关村创新型孵化器”、“北京市小型微型企业创新创业基地”、“北京市中小企业知识产权集聚发展示范区”和“北京市版权保护示范园区(基地)”,以及“北京市抗击新冠肺炎疫情先进集体”、“首都文明商户”、“北京市非公有制经济组织党建示范单位”和“北京市非公有制经济组织党员示范驿站”等40多项荣誉资质,入驻园区的企业可以享受国家、北京市和丰台区等各级政府惠企政策。首科创融已经成为推动区域创新和产业升级的重要平台,首科大厦已经成为全国文化科技园区的知名品牌。

周边配套:

综合商场:紧邻公主坟商圈,翠微广场、翠微百货、城乡贸易中心、卜峰莲花超市、国美电器

银行:中国工商银行、中国建设银行、中信银行、北京市商业银行、中国农业银行、中国银行

酒店:国统宾馆、东方威尼斯国际酒店、速8酒店、

医院:电力医院、广外医院、广安门中医院、宣武医院

                                                                                                                                       

出租小面积

出租大面积

定制装修

125平米-500平米

500平米-5000平米

                    150平米—2500平米可以定制装修
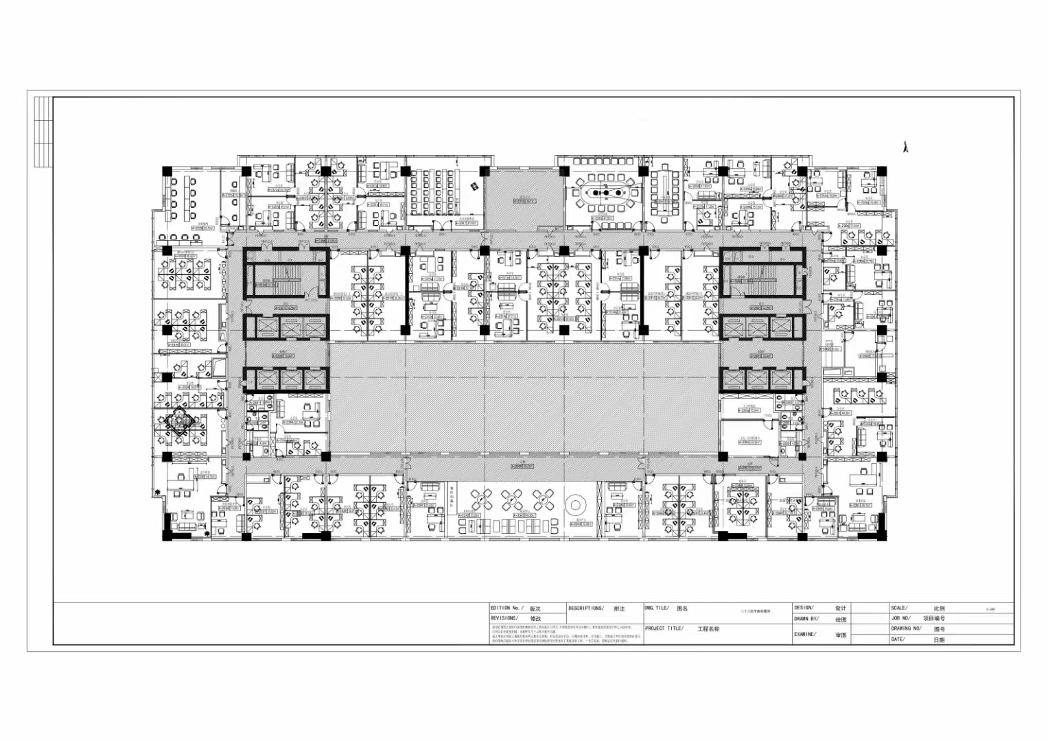
交付状态现状 整层2500平米可连层出租                           配置全套办公家具拎包入住


 



出租房源

Rental housing

  • 定制装修150平米到2500平米拎包入住

    面积:349m²价格:5.5元/m²·天装修:精装现房工位:30-50

    整层出租 空置

    面积:2500m²价格:5元/m²·天装修:遗留装修工位:200-400

    588平米精装带家具现房可以随时入住拎包入住

    面积:588m²价格:5.5元/m²·天装修:精装现房工位:50-70

    正对电梯半层现房1128平米随时起租拎包入住

    面积:1128m²价格:5.2元/m²·天装修:精装现房工位:100-200
    提示:最终租赁面积情况以实时来电咨询为准,感谢您的支持!

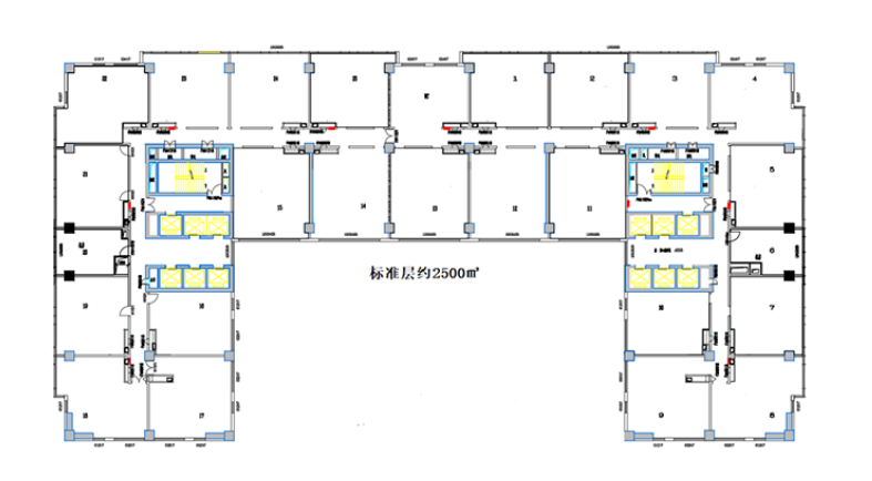
    标准层平面图

    Standard floor plan

    项目图片

    Project picture

    办公区实拍图

    Office area pictures

    地理位置

    Location

    交通状况

    本项目铁路毗邻北京西站和南站;

    公路;京石、京开高速公路的起始点

    ;六里桥交通枢纽,地铁:10、9、14号线;

    地理位置极占优势,交通十分便利是商务办公的首选之地。

    北京市丰台区西局东街16号招商电话13366773399