24小时咨询热线:13366773399

5-8 元/m².天

分享到:

项目简介

Project brief

    丰台远洋·锐中心位于丽泽金融商务区E06地块,地处北京西二、三环路之间。远洋·锐中心项目主体设计由美国SOM建筑设计事务所主导,以绿色健康建筑理念闻名世界;与利华公司办公大厦、百事公司总部、通用电气公司总部、IBM公司总部等世界顶尖企业总部师出同门。未来将开启以10号线、14号线、16号线、11号线、机场快轨五条轨道联劢的便利轨道交通时代。近距北京西站、南站、以及首都二机场较近,对于未来飞机、高铁出行提高较大便利度。目立足于推动首都高端金融产业发展政策之中,承接金融街等传统金融产业区外拓的龙头型企业。项目建筑设计形态,贯穿“共享、健康、艺术、人文”等理念要素,以超前的姿态建立起新型的金融总部式生态办公体系,开创国际领先的商务办公新模式。

写字楼总面积: 156716.61平方米
建筑层数: 主楼:地上42层,地下5层; 裙楼:地上3层,地下5层
楼体高度: 200m
机动车车位:531个(地下)
标准层建筑面积:2400-3400平方米
电梯数量: 主楼 客梯22部、货梯2部、转换梯2部、扶梯1部; 裙楼 客梯2部、货梯1部
空调系统: 四管制风机盘管+新风系统
PM2.5过滤系统: 双重PM2.5过滤系统,效率不低于90%,臭氧浓度控制在国标以下
供电方式:双路供电
网络:移动、联通、电信

出租房源

Rental housing

  • 精装修带家具豪华装修

    面积:550m²价格:7元/m²·天装修:精装修

    整层面积出租吊白网

    面积:3300m²价格:6元/m²·天装修:精装修

    自由分割精装修豪华装修

    面积:350m²价格:5.5元/m²·天装修:精装修

    带露台连层出租豪华装修

    面积:6600m²价格:5元/m²·天装修:精装修
    提示:最终租赁面积情况以实时来电咨询为准,感谢您的支持!

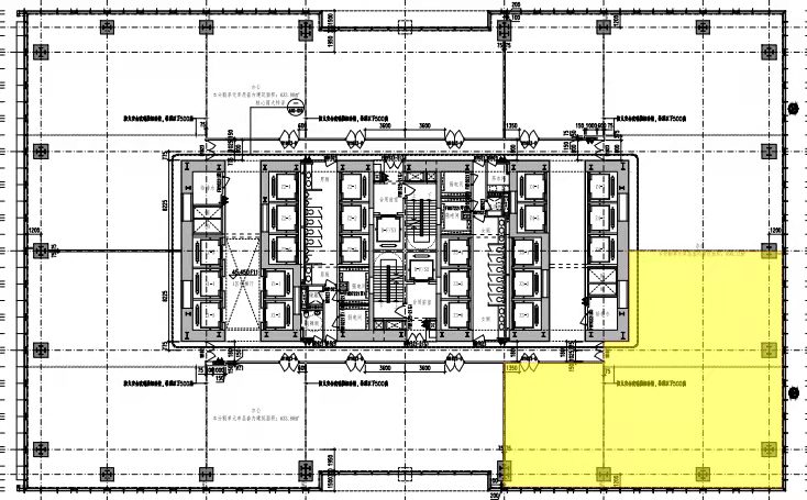
    标准层平面图

    Standard floor plan

    项目图片

    Project picture

    办公区实拍图

    Office area pictures

    地理位置

    Location

    交通状况

    2020年底地铁14号线丽泽商务区站顺利通过工程验收。

    地铁14号线在丽泽金融商务区范围内设有“三站两区间”(东管头站—丽泽商务区站—菜户营站),全长约2350米。截至目前,东管头站、东丽区间、丽泽商务区站、丽菜区间及菜户营站均已建设完成并通过工程验收。11月11日起,地铁14号线全线(张郭庄站—善各庄站)启动贯通跑图试运行,确保2021年底建成通车。丽泽商务区站是地铁14号线与地铁16号线的十字换乘站,东西向为地铁14号线,南北向为地铁16号线,建筑面积23134.37平方米,为地下三层岛式车站。

    公交站 161米 途经公交车: 74路 83路 395路 458路 631路 977路 夜15路 菜户营桥西 - 公交站 438米 途经公交车: 74路 83路 395路 458路 631路 830路 958路 977路 997路 特17路 夜15路