24小时咨询热线:13366773399

4-6 元/m².天

分享到:

项目简介

Project brief

              金丰能源中心,地铁上盖甲级写字楼,金丰能源中心坐落于中关村科技园丰台园东三期核心,地下直接与地铁 号线丰台科技园站连通。项目总占地面积 69217.681 平方米,以 栋国际甲级写字楼、 栋大型商业中心等多元化业态构筑 25 万平方米宏大地标建筑群。项目建成后,将吸引新能源行业、能源装备制造企业、高新技术行业以及其他知名企业等、入驻该项目,打造新能源产业的聚集平台。

金丰能源中心汇集全球顶级知名建材设备设施,以前瞻性战略眼光并不惜成本地规划应用国际同步顶级环保设备、设施,成为区域内唯一一个达到国家绿能环保标准的写字楼项目。

金丰能源中心直通地铁9号线丰台科技园站,交通四通八达,紧邻四环快速路,万寿路南延线,周边20余条公交线路经过,驱车至首都第二机场20分钟,东临京开,京津塘高速公路,西有京港澳,京良等重要公路干线,便捷路网交织,快捷通达北京各大商圈及热点区域。

2.3 万平方米精品购物中心集超市、餐饮、休闲、娱乐、商务中心等功能于一身,打造自由一站式商务体系。 

项目独立商业,通过统一运营管理保证后期业态稳定,不仅将服务于项目自身的5栋5A甲级写字楼,更为周边企业提供全方位的商务配套

金丰能源中心,总部企业的明智选择。

出租房源

Rental housing

  • 整层出租空置

    面积:1700m²价格:5元/m²·天装修:毛坯

    正对电梯半层空置

    面积:850m²价格:5元/m²·天装修:毛坯

    339平米东南朝向空置

    面积:339m²价格:5.2元/m²·天装修:毛坯

    大面积出租多个连层空置

    面积:3400m²价格:4.5元/m²·天装修:毛坯
    提示:最终租赁面积情况以实时来电咨询为准,感谢您的支持!

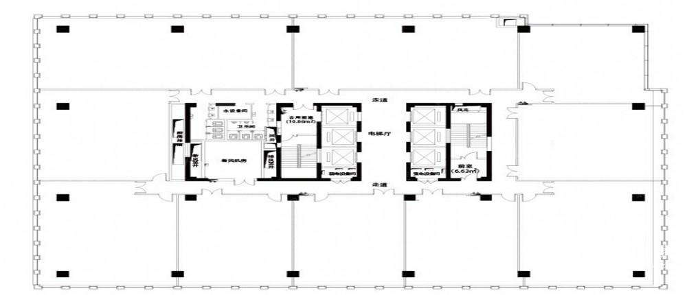
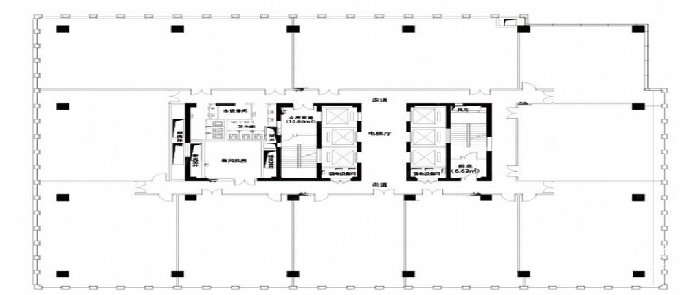
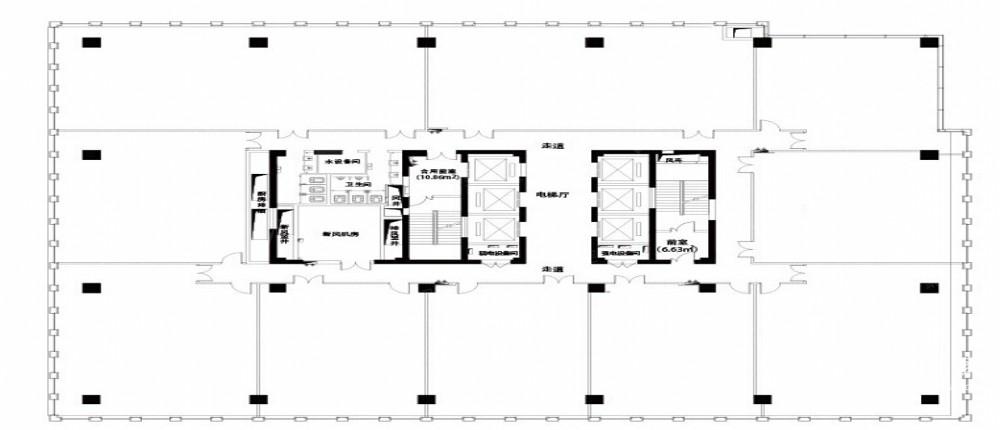
    标准层平面图

    Standard floor plan

    项目图片

    Project picture

    办公区实拍图

    Office area pictures

    地理位置

    Location

    交通状况

    金丰能源中心直通地铁9号线丰台科技园站

    交通四通八达,紧邻四环快速路,万寿路南延线

    周边20余条公交线路经过,驱车至首都第二机场20分钟

    东临京开,京津塘高速公路,西有京港澳,京良等重要公路干线,便捷路网交织,快捷通达北京各大商圈及热点区域。

     特八,740路等公交车直达