24小时咨询热线:13366773399

4-6 元/m².天

分享到:

项目简介

Project brief

              北京科技商务办公新时代丰台金茂广场北京开山之作·总占地:2.95万m2·总建筑面积(含地下):16.4万m2·地上总建面:11.8万m2·容积率:4.0.绿化率:15%丰台金茂广场北京首席高端绩金城市综合体是对传统商办产品的迭代与超越,集生态办公、创意空间、主题商街、时尚休闲娱乐、科技体验、文化展览、圈层社交和综合服务等功能于一体的城市高端商务生态圈雄据新未来新国门,高效路网加速企业腾飞四轨环绕:周边有地铁房山线、房山北延线(在建,2019年开通)、9号线、16号线(在建,2018年开通)四条地铁线,其中距离9号线丰台科技园站仅400米;两大高速一大环线:东侧有京开高速,西侧有京港澳高速,北距四环仅500米;快速通达二三环:距离三环玉泉营桥车行距离约7公里,距离二环菜户营桥约9公里;首都第二机场:车行距离约30公里;三大火车站环%:北京南站、北京西站、北京新站。丰台金茂广场金茂100m*24h无边界城市一座改变城市的广场丰台金茂广场由16家央企地产企业之一的中国金茂开发建设,位于丰台区中关村科技园总部基地东三期。项目总占地面积2.95万㎡,总建筑面积16.4万m㎡(其中地上11.8万m㎡,地下4.6万㎡)。项目整体定位为金茂无边界城市综合体,由南、北两区组成,其中,北区包括LEED金级写字楼、创智商务办公、LIFEPARK时尚艺文立体商街。3号楼LEED金级写字楼总面积:2.6万平米办公面积:2.4万平米标准层:约1500平方米i3总层数:18层办公层数:16层办公楼层:F3-F18标准层层高:4.2米(顶层5.2米)主力分户:100-160平方米使用率:75%电梯数量:5部客梯1部货梯办公建面:24350.31n㎡,整栋售价约12亿元底商建面:地上商业1753.02mf,货值约1.5亿元电梯品牌|日立客梯数量|5部货梯数量|1部电梯|荷载|1350Kg梯速|2.5米/秒单梯服务面积约4000平米是否有新风系统|是新风量|人均56000立方米h|令采暖|制冷及供暖方式|风机盘管+新风公区大堂辅助地板梁暖手机信号|无盲区全覆盖信号WF1首层公共区域wi市覆盖停车|车辆管理系统停车|寻车反向寻车系统充电车位


出租房源

Rental housing

  • 出售房源 1518平米空置

    面积:1518m²价格:50000元/m²·天装修:吊顶网络地板白墙

    整栋出售5万/平米空置

    面积:25071m²装修:吊顶网络地板白墙

    正对电梯759平米遗留装修空置

    面积:759m²价格:5.2元/m²·天装修:精装现房

    330平米东南朝向遗留装修空置

    面积:330m²价格:5.2元/m²·天装修:精装现房
    提示:最终租赁面积情况以实时来电咨询为准,感谢您的支持!

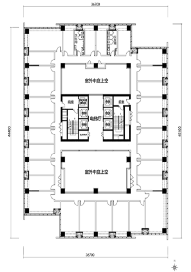
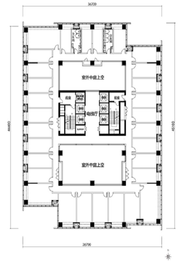
    标准层平面图

    Standard floor plan

    项目图片

    Project picture

    办公区实拍图

    Office area pictures

    地理位置

    Location

    交通状况

    地铁:9号线科技园站

    公交:科技园站  五圈路西 470路;969路;快速直达专线131路;快速直达专线161路;快速直达专线175路;快速直达专线179路;快速直达专线22路;专190路