24小时咨询热线:13366773399

4-5 元/m².天

分享到:

项目简介

Project brief

    北京中铁大厦是中国中铁开发自持的项目,位于西南四环丰台科技园汽车博物馆东侧。北京中铁大厦共分为C座、A座、B座、D座连体楼,A座与B座开发商自用,C座位于项目的西侧,又称“西塔”,独立大堂,地上11层;D座位于项目的东侧,又称“东塔”,独立大堂,地上11层,整层1208㎡,整栋13288㎡。

出租房源

Rental housing

  • 1208平米整层出租空置

    面积:1208m²价格:4.5元/m²·天装修:精装现房

    正对电梯空置

    面积:660m²价格:4.5元/m²·天装修:精装现房

    精装带家具空置

    面积:600m²价格:4.5元/m²·天装修:精装现房

    精装带家具空置

    面积:336m²价格:4.5元/m²·天装修:精装现房
    提示:最终租赁面积情况以实时来电咨询为准,感谢您的支持!

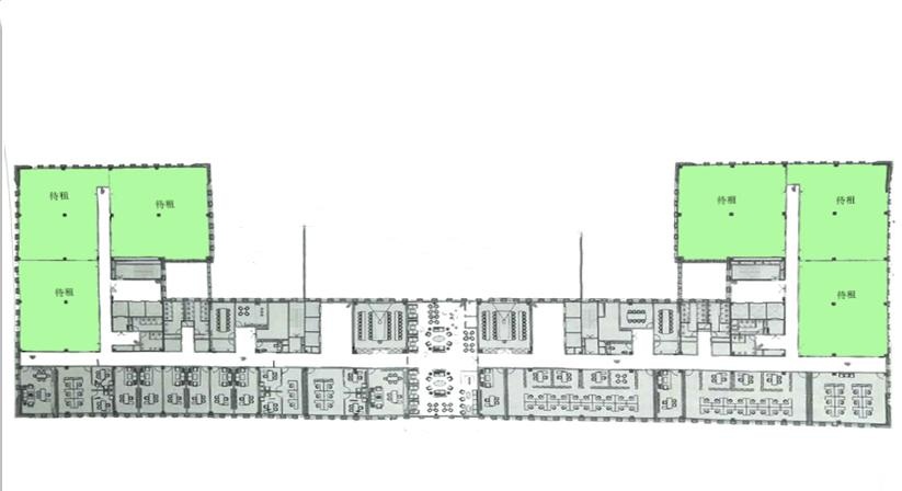
    标准层平面图

    Standard floor plan

    项目图片

    Project picture

    办公区实拍图

    Office area pictures

    地理位置

    Location

    交通状况

    地铁:9号线科技园站或者科怡路站都比较方便

    公司:科技园站或者怡海花园站354路;400路快车内环[原特9路内环];400路内环[原740路内环];912路;快速直达专线110路;快速直达专线22路;快速直达专线95路470路;969路;快速直达专线131路;快速直达专线161路;快速直达专线175路;快速直达专线179路;快速直达专线22路;专190路