24小时咨询热线:13366773399

4-6 元/m².天

分享到:

项目简介

Project brief

        金唐中心项目位于北京市丰台区西三环路丽泽桥西南角。项目由三栋5A甲级写字楼和一座购物中心组成,总建筑面积约24万平方米。是集商务办公和购物、餐饮、休闲、娱乐为一体的大型城市综合体项目。

随着京津冀一体化上升为国家战略,疏散首都非核心职能成为北京未来发展的重要方向。恒泰广场项目作为北京三环边上的城市综合体项目,将成为未来北京市场的绝版。 

作为北京市金融业未来发展的重要载体,丽泽金融商务区将成为北京继CBD和金融街之后的金融产业“第三级”。丽泽金融商务区未来着力发展创新金融、金融信息、金融文化、金融服务四大产业。 

项目周边已诸多大型、成熟社区,为项目提供了大量稳定周边客源。同时,随着丽泽金融商务区的开发,丽泽桥区域以其稀缺的地理位置,得到更多全国知名开发商的垂青。在未来,丽泽桥板块将以高端的、宜居的形象,崛起于北京西南。 

项目周边的严重缺乏商务办公和购物休闲配套。周边的购物场所仅有项目西北方向两公里的华堂商场,周边居民的购物需求,特别是一站式的购物、休闲、娱乐需求,无法就近得到满足。同时,周边亦缺乏商务办公配套,造成供求极度不平衡。项目周边商务办公和购物休闲业态的严重缺乏,将为恒泰广场项目的入市,提供了绝佳的市场基础。

出租房源

Rental housing

  • 精装现房空置

    面积:320m²价格:5元/m²·天装修:精装现房

    整层面积出租空置

    面积:2100m²价格:5元/m²·天装修:精装现房

    正对电梯空置

    面积:1100m²价格:5元/m²·天装修:精装现房

    东南采光精装现房空置

    面积:648m²价格:5元/m²·天装修:精装现房
    提示:最终租赁面积情况以实时来电咨询为准,感谢您的支持!

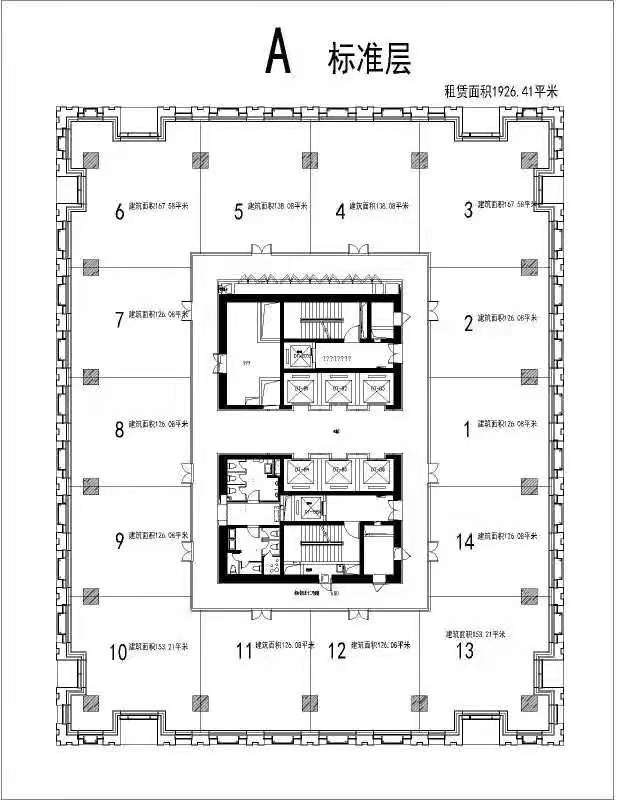
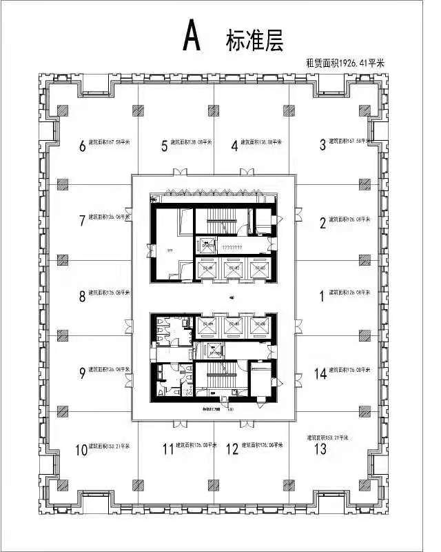
    标准层平面图

    Standard floor plan

    项目图片

    Project picture

    办公区实拍图

    Office area pictures

    地理位置

    Location

    交通状况

    1.优越的地理位置

    项目位于西三环丽泽桥西南角,地理位置十分优越。

    2.便利的交通条件

    恒泰广场地理位置得天独厚,周边棋盘式路网四通八达。地铁10号线、14号线双线上盖,使项目与CBD、金融街、中关村等重点区域的联系更加紧密。毗邻北京西站、南站和丰台火车站,京港澳、京开高速环绕通达四方。距离未来的北京第二机场35公里,驱车半小时即可到达。便利的交通条件,是项目区别于其他项目的重大优势。