24小时咨询热线:13366773399

4-6 元/m².天

分享到:

项目简介

Project brief

    华夏幸福创新中心——响应国家战略,在经济转型、产业升级的宏观背景下,华夏幸福十余年专注产业新城运营,重磅推出最新产业力作。华夏幸福创新中心聚焦战略新兴产业集群,搭建国际创新平台,为其总部、研发、管理、销售、服务等功能提供产业办公场所,定制产业商务配套、产业发展服务平台,构筑产业生态圈。首站落户北京丰台,以“轨道交通、节能环保、智慧城市”为主导,汇集国际创新中心、国际企业总部办公区、产业配套企业办公区、主题产业园、中心时尚商务区、丰台产业服务区、城市生态幸福广场等七大功能模块。全面满足产业龙头企业、行业中坚企业、创新成长企业的产业办公需求,为企业选址提供新标准。

出租房源

Rental housing

  • 整层面积空置

    面积:2300m²价格:5.2元/m²·天装修:网络地板白墙

    精装现房空置

    面积:1100m²价格:5.5元/m²·天装修:精装现房

    小户型正对电梯空置

    面积:492m²价格:5.5元/m²·天装修:精装现房

    精装带家具空置

    面积:988m²价格:5.6元/m²·天装修:精装现房
    提示:最终租赁面积情况以实时来电咨询为准,感谢您的支持!

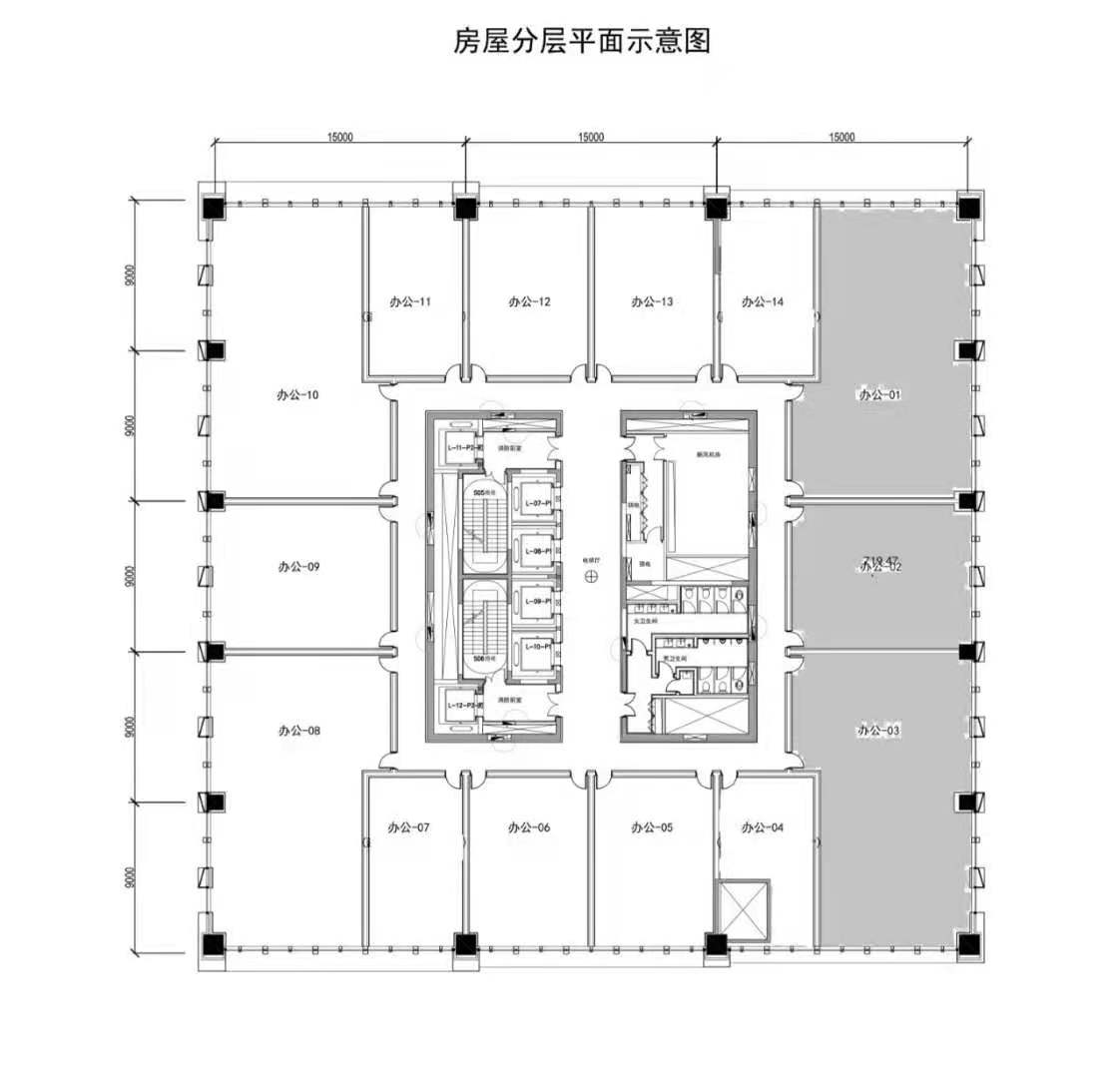
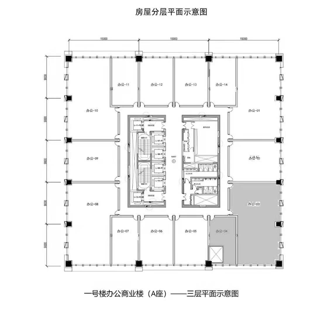
    标准层平面图

    Standard floor plan

    项目图片

    Project picture

    办公区实拍图

    Office area pictures

    地理位置

    Location

    交通状况

    项目道路交通:1个机场、2条高速、3大高铁站、10条轨道交通,筑就产业财富通途

    1个机场:首都第二机场,建成后年客运量为1亿人次,带来更多的商务往来、人才流动;

    2条高速:城市主干道四环路、万寿路南延线贯穿丰台科技园,更有京开、京港澳高速分列两翼;

    3大高铁站:北京西站、北京南站、丰台火车站均位于区域内; 10条轨道交通:这里有10条轨道交通经过丰台,其中,9号线丰台科技园站距华夏幸福创新中心仅200米。 于此,40分钟接驳全市各核心商圈,4小时接驳京津冀城市圈,8小时接驳环亚太,24小时接驳全球